fabianobarbera-architetto
Home
Progetti
Realizzazioni
Villa R
Collaborazioni
Focus - Cantieri
Focus - Cantieri 2
Focus - Cantieri 3
>
Focus - Cantieri 3 - p. 2
Procedimenti Edilizi
Contatti
Fisco & Edilizia
Detrazioni Fiscali Lavori Edili
Detrazioni Fiscali Riqualificazione Energetica
Viaggi e Architettura
Valencia
Rendering
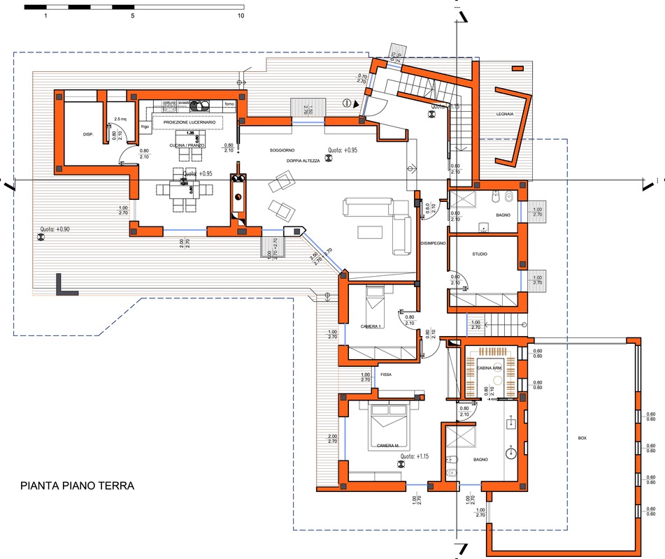
Casa unifamiliare
Progetto 2010
Realizzazione 2011 - in fase di completamento
Google Analytics